Mieszkanie na sprzedaż Częstochowa, Śródmieście, Lelewela

3 pokoje
56.00 m²
5 892,86 zł/m2
1 piętro
M3N-MS-1562
Oblicz ratę kredytu

330 000 zł

Mieszkanie na sprzedaż

Szczegóły oferty

Symbol oferty M3N-MS-1562
Powierzchnia 56,00 m²
Liczba pokoi 3
Rodzaj budynku blok
Technologia budowlana cegła
Standard
Piętro 1
Liczba pięter w budynku 4
Garaż miejsce parkingowe
Stan lokalu Do remontu
Mies. czynsz admin. 750 PLN
Instalacje niewymienione
Balkon jest
Rok budowy 1970
Widok na osiedle
Gaz jest
Woda tak - ciepła junkers
Dojazd asfalt
Otoczenie działki zabudowane
Ogrzewanie miejskie
Umeblowanie umeblowane
Odległość do komunikacji publicznej [m] 100 m
Odl. do sklepu [m] 100 m
Usytuowanie dwustronne
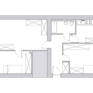
Pomieszczenia
M-3 Nieruchomości

M-3 Nieruchomości

Manager
Nr licencji: 20919

Napisz wiadomość 36 Ofert

Opis nieruchomości

Trzypokojowem mieszkanie o pow. 56 m2 położone na 1 piętrze w bloku 4-piętrowym w centrum miasta. 
Doskonała lokalizacja. Mieszkanie nadaje się do remontu. Okna drewniane zespolone. 
Mieszkanie dwustronne z balkonem na stronę południową. Blok z cegły, z lat 70-tych, XX wieku, docieplony. Zamykany parking dla mieszkańców. Do mieszkania przynależy piwnica.
Okolica cicha i spokojna. Blisko do kina, teatru, hali targowej, sklepów i restauracji.
 

Lokalizacja nieruchomości

Kalkulatory

Kalkulator kredytowy

Wysokość raty

PLN
%

Kalkulator kosztów

Podatek od czynności cywilno-prawnych

Taksa notarialna
(opłata notarialna)

Wniosek o wpis do KW

VAT od prowizji
agencji nieruchomości

VAT od taksy notarialnej
(opłaty notarialnej)

Prowizja agencji nieruchomości

Wypisy aktu notarialnego

Razem

Uwaga: mogą wystąpić dodatkowe opłaty za założenie księgi wieczystej oraz ustanowienie hipoteki.

PLN
PLN
PLN
PLN
PLN
PLN
%
PLN

Podobne oferty

Mieszkanie na sprzedaż

Częstochowa, Śródmieście

2 pokoje 37 m2 8 536,59 zł/m2

Mieszkanie na sprzedaż

Częstochowa, Śródmieście

2 pokoje 50 m2 4 889,78 zł/m2

Manager

Proszę wprowadzić poprawne imię i nazwisko
Proszę wprowadzić poprawny numer telefonu
Proszę wprowadzić poprawny adres e-mail
Proszę zaznaczyć wymagane zgody
Rozwiąż równanie:
27 9
Niepoprawny wynik