Mieszkanie na sprzedaż Częstochowa, Śródmieście, Al. Wolności

3 pokoje
97.68 m²
2 559,38 zł/m2
1 piętro
M3N-MS-1508
Oblicz ratę kredytu

250 000 zł

Mieszkanie na sprzedaż
Bez prowizji

Szczegóły oferty

Symbol oferty M3N-MS-1508
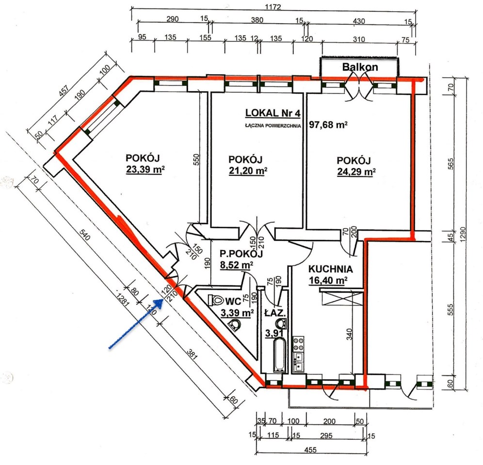
Powierzchnia 97,68 m²
Powierzchnia użytkowa [m2] 97,68 m²
Liczba pokoi 3
Rodzaj budynku kamienica
Technologia budowlana murowany
Standard
Opłaty wg liczników gaz, prąd, woda
Piętro 1
Liczba pięter w budynku 2
Stan lokalu Do odświeżenia
Okna stare drewniane
Balkon jest
Liczba balkonów 1
Rok budowy 1905
Widok panorama miasta
Dojazd asfalt
Otoczenie działki zabudowane
Odległość do komunikacji publicznej [m] 30 m
Odl. do sklepu [m] 30 m
Usytuowanie dwustronne
Pomieszczenia
M-3 Nieruchomości

M-3 Nieruchomości

Manager
Nr licencji: 20919

Napisz wiadomość 35 Ofert

Opis nieruchomości

Duże, trzypokojowe mieszkanie o powierzchni użytkowej 98 m2 położone na 1 piętrze w dwupiętrowej kamienicy przy ul. Wolności w dzielnicy Śródmieście. 
Mieszkanie dwustronne, ciekawy rozkład pomieszczeń, przestronne pokoje, balkon na stronę południową.
Do mieszkania przynależy pomieszczenie na strychu o powierzchni 40 m2. Mieszkanie nadaje się do remontu, daje duże możliwości aranżacyjne.

W pobliżu pełna infrastruktura - przystanki komunikacji miejskiej (autobus, tramwaj), sklepy (Lidl, Apteka, Społem), punkty usługowe, blisko do centrum miasta.

Ogrzewanie centralne - piec gazowy dwufunkcyjny.

Lokal wyodrębniony, udział w gruncie. Księga Wieczysta bez obciążeń. Jeden właściciel.
 

Lokalizacja nieruchomości

Kalkulatory

Kalkulator kredytowy

Wysokość raty

PLN
%

Kalkulator kosztów

Podatek od czynności cywilno-prawnych

Taksa notarialna
(opłata notarialna)

Wniosek o wpis do KW

VAT od prowizji
agencji nieruchomości

VAT od taksy notarialnej
(opłaty notarialnej)

Prowizja agencji nieruchomości

Wypisy aktu notarialnego

Razem

Uwaga: mogą wystąpić dodatkowe opłaty za założenie księgi wieczystej oraz ustanowienie hipoteki.

PLN
PLN
PLN
PLN
PLN
PLN
%
PLN

Podobne oferty

Mieszkanie na sprzedaż

Częstochowa, Śródmieście

2 pokoje 37 m2 8 536,59 zł/m2

Manager

Proszę wprowadzić poprawne imię i nazwisko
Proszę wprowadzić poprawny numer telefonu
Proszę wprowadzić poprawny adres e-mail
Proszę zaznaczyć wymagane zgody
Rozwiąż równanie:
24 7
Niepoprawny wynik