Lokal na wynajem Częstochowa, Śródmieście, Wolności

2 pokoje
48.53 m²
35,03 zł/m2
parter
M3N-LW-1606

1 700 zł

Lokal na wynajem
Nowa oferta

Szczegóły oferty

Symbol oferty M3N-LW-1606
Powierzchnia 48,53 m²
Powierzchnia użytkowa [m2] 48,53 m²
Liczba pokoi 2
Rodzaj budynku kamienica
Standard
Opłaty wg liczników prąd, woda
Piętro parter
Liczba pięter w budynku 2
Stan lokalu Do odświeżenia
Typ kaucji jednomiesięczna
Okna PCV
Rodzaj lokalu jednopoziomowy
Przeznaczenie lokalu handlowo-usługowy, handlowy, usługowy
Dojazd asfalt
Odległość do komunikacji publicznej [m] 20 m
Usytuowanie jednostronne
Możliwość parkowania w pobliżu
Położenie lokalu ruchliwa ulica
Witryna wystawowa duża
Wejście od ulicy
Pomieszczenia
M-3 Nieruchomości

M-3 Nieruchomości

Manager
Nr licencji: 20919

Napisz wiadomość 36 Ofert

Opis nieruchomości

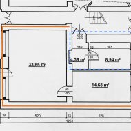
Lokal użytkowy o powierzchni całkowitej 48,53 m2 położony na parterze przy ul. Wolności (rondo Mickiewicza) w śródmieściu Częstochowy.
Lokal składa się z głównego pomieszczenia handlowo-usługowego od strony ulicy, z dużą witryną (34 m2), zaplecza z łazienką (14 m2). Wysokość pomieszczeń - 3,30 m.
Lokal do odświeżenia.

Media: woda, prąd, kanalizacja. Okna PCV. Istnieje możliwość montażu reklamy zewnętrznej na elewacji. 

Można wynająć dodatkową powierzchnię - połączone z lokalem zaplecze/magazyn z osobnym wejściem od podwórka (ok. 13 m2 - widoczne na rzucie zamieszczonym w zdjęciach) - cena do negocjacji. 

 

Lokalizacja nieruchomości

Manager

Proszę wprowadzić poprawne imię i nazwisko
Proszę wprowadzić poprawny numer telefonu
Proszę wprowadzić poprawny adres e-mail
Proszę zaznaczyć wymagane zgody
Rozwiąż równanie:
30 5
Niepoprawny wynik